Direkt zum Seiteninhalt

Innenarchitektur Eigentumswohnung - Marcel Baechler - Innenarchitektur, Architektur & Praxisplanung


Neubau Eigentumswohnung

Auftraggeber: Privat, Bellmund
Realisierung: 2024
Auftragsart: Direktauftrag

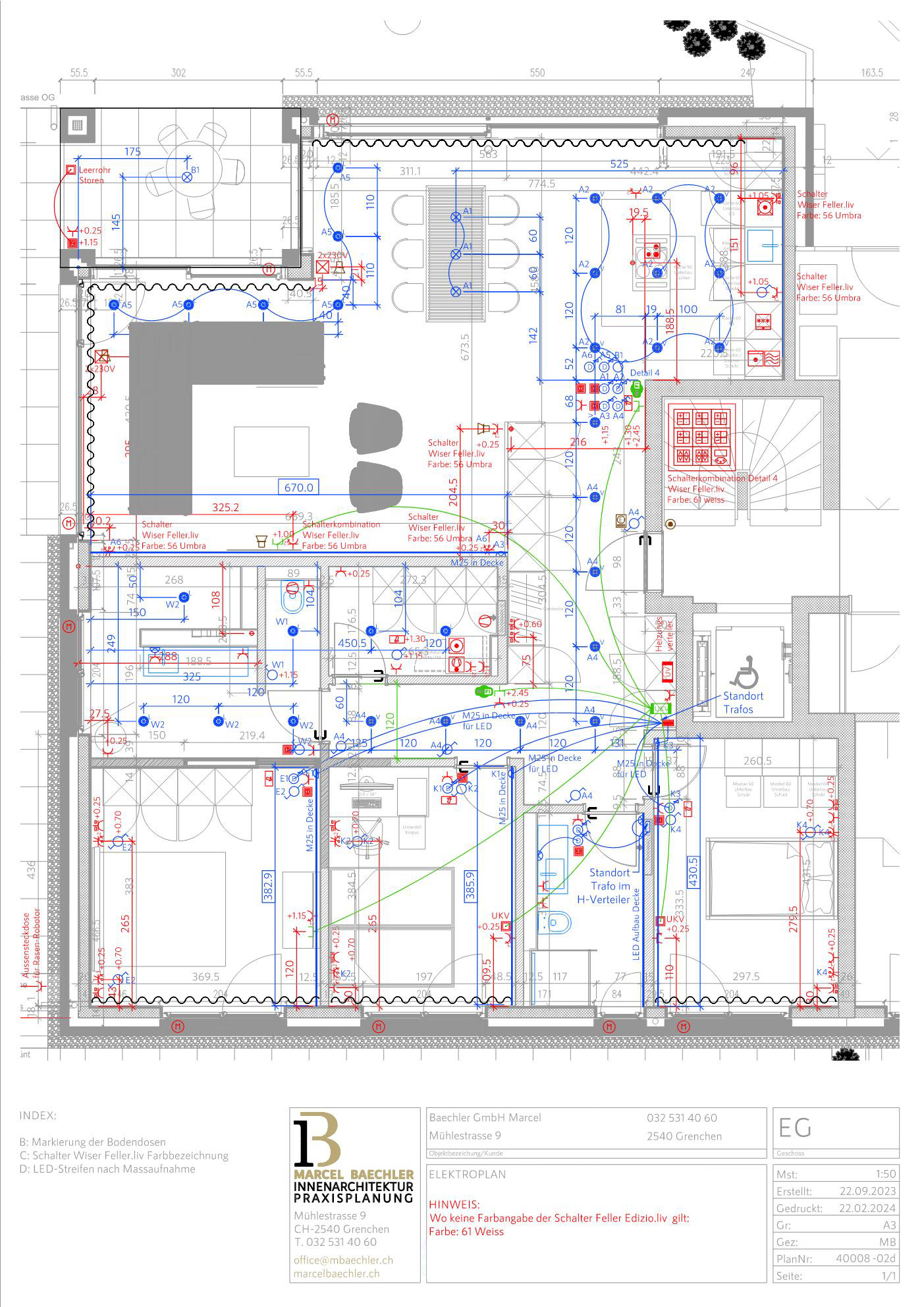
Innenarchitektur: Marcel Baechler, Innenarchitekt vsi.asai.
Bauleitung Wohnung: Marcel Baechler, Innenarchitekt vsi.asai.

Moderne Eleganz trifft auf Gemütlichkeit: Ein Blick in zeitgenössische Wohnräume

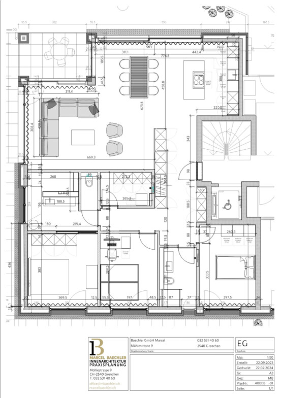
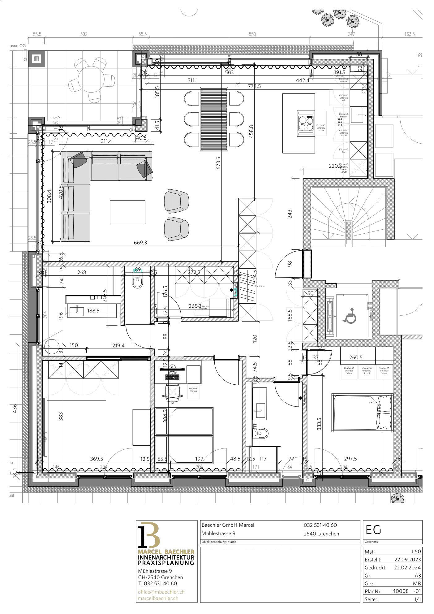
Das Wohnzimmer beeindruckt durch seine minimalistische Gestaltung, die Ruhe und Klarheit ausstrahlt. Die neutrale Farbpalette mit dominierenden Beige- und Brauntönen verleiht dem Raum eine warme, einladende Atmosphäre. Klare Linien der Möbelstücke unterstreichen den modernen Stil. Bequeme Sofas und Sessel bilden eine gemütliche Sitzgruppe um einen eleganten Couchtisch. Eine Kombination aus Ribag Einbau- und Aufbauleuchten sowie stilvollen Pendelleuchten von Flos sorgt für eine ausgewogene Lichtverteilung.

Der Essbereich wird durch seine geschickte Gestaltung zum Mittelpunkt geselliger Abende. Ein schlichter Tisch mit passenden Stühlen bildet das Zentrum des Raumes. Die wengenfarbigen Holztöne der Möbel fügen Wärme hinzu. Der über 30 Jahre alte Tisch, ursprünglich aus Ahorn, wurde vom Schreiner abgeschliffen und dunkel gebeizt, sodass er wie neu aussieht und hoffentlich weitere 30 Jahre Freude bereitet. Die farblich passenden Stühle sind von Seleform.ch.

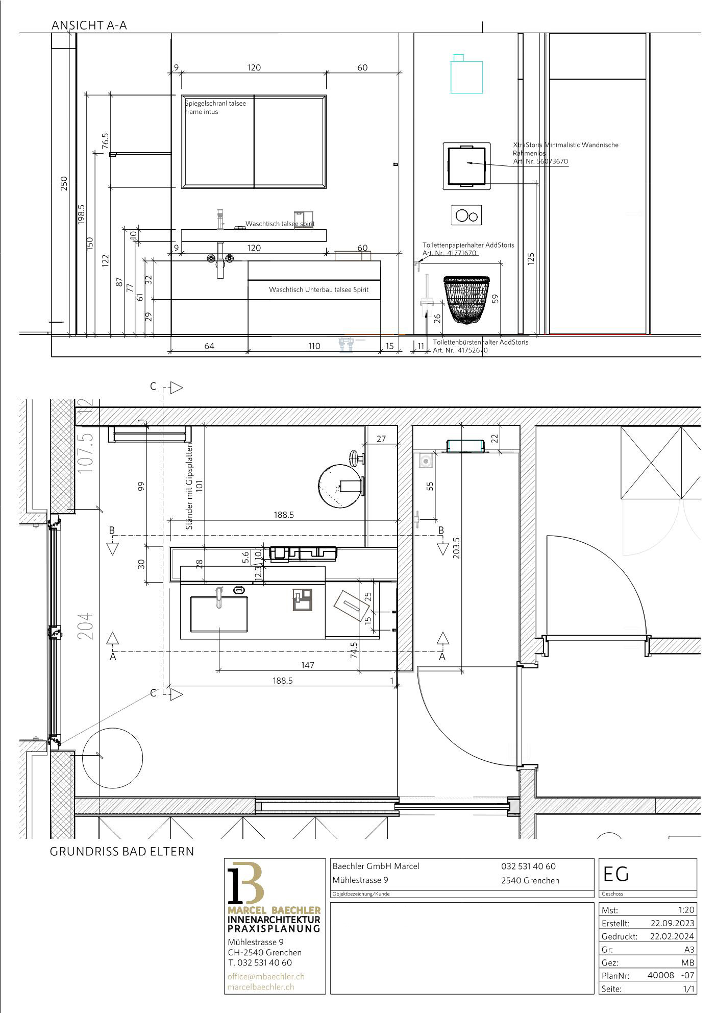
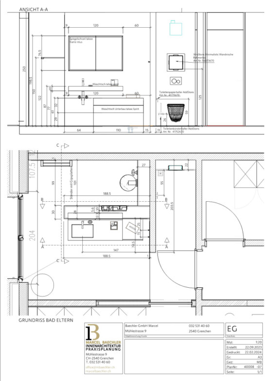
In der heutigen Zeit ist das Badezimmer nicht mehr nur funktional, sondern ein Ort der Entspannung und des Wohlbefindens. Das Herzstück dieses Badezimmers ist das minimalistische Design mit klaren Linien und einer reduzierten Farbpalette. Die Kombination aus weissen Oberflächen und warmen Holzelementen schafft eine harmonische Atmosphäre, die modern und zeitlos wirkt. Ein beleuchteter Spiegel sorgt nicht nur für optimale Lichtverhältnisse, sondern fungiert auch als stilvolles Designelement. Indirekte Beleuchtung verleiht dem Raum Tiefe und schafft eine angenehme Stimmung.

Das Schlafzimmer gestaltet sich im Stil der Wohnräume modern und minimalistisch. Helle Farben und schlichte Einrichtung tragen zu einem aufgeräumten, ruhigen Ambiente bei. Dezente Beleuchtung hinter dem Kopfteil des Bettes verleiht dem Raum eine angenehme Atmosphäre. Bett und Kleiderschrank sind von uns gestaltet und von einer Schreinerei produziert worden.

Diese Räume sind hervorragende Beispiele dafür, wie modernes Design nicht nur ästhetisch ansprechend sein kann, sondern auch eine einladende, funktionale Wohnumgebung schafft. Durch den Einsatz hochwertiger Materialien und einer durchdachten Raumaufteilung fühlen sich die Bewohner sehr wohl.
Visualisierung | Realitätsfoto (Schieber nach Links und Rechts bewegen)
Line
Zurück zum Seiteninhalt